VPR 120
VPR 120 er et ventilationsaggregat med varmegenvinding via en roterende veksler i kombination med en varmepumpe. Varmepumpen har en reversibel kølekreds, og kan køle eller varme tilluften afhængig af behov.
Med den roterende veksler i kombination med en optimal placering af kondensator- og fordamperflade opnår aggregatet en meget høj køle- og varmeeffekt og dermed også en rigtig god COP. Aggregatets variable kompressor giver mulighed for en meget præcis regulering at tillufttemperaturen.
VPR 120 anvendes ofte i bygninger, hvor der er et kølebehov f.eks. kontorer, butikslokaler, koncertsale osv.
Leveres med Nilan Gateway til App løsning.
Luftmængde (se projekteringsdata for SEL/SFP værdi)
Min : 400 m3/hMax : 1950 m3/h
|
| Luftmængde | 1200 m3/h |
| Udsugningstemperatur | -7 °C / 72% RH |
| Udetemperatur | 20 °C / 38% RH |
| Sorptionsveksler | 10,27 kW |
| Kondensator | 2,71 kW |
| Total varmekapacitet | 12,98 kW |
| Indblæsningstemperatur | 21,3 °C |
| Kompressorens strømforbrug | 0,51 kW |
| Varme COP | 21,51 |
Køledata (kondensationsveksler)
| Luftmængde | 1200 m3/h |
| Udsugningstemperatur | 35 °C / 40% RH |
| Udetemperatur | 27 °C / 47% RH |
| Sorptionsveksler | 2,52 kW |
| Fordamper | 3,66 kW |
| Total køleeffekt | 6,18 kW |
| Indblæsningstemperatur | 21,2 °C |
| Kompressorens strømforbrug | 1,0 kW |
| Køle EER | 5,65 |
Varmedata (sorptionsveksler)
| Luftmængde | 1200 m3/h |
| Udsugningstemperatur | -7 °C / 72% RH |
| Udetemperatur | 20 °C / 38% RH |
| Sorptionsveksler | 12,06 kW |
| Kondensator | 2,49 kW |
| Total varmekapacitet | 14,55kW |
| Indblæsningstemperatur | 21,0 °C |
| Kompressorens strømforbrug | 0,50 kW |
| Varme COP | 24,54 |
Køledata (sorptionsveksler)
| Luftmængde | 1200 m3/h |
| Udsugningstemperatur | 35 °C / 40% RH |
| Udetemperatur | 27 °C / 47% RH |
| Sorptionsveksler | 5,0 kW |
| Fordamper | 3,43 kW |
| Total køleeffekt | 8,47 kW |
| Indblæsningstemperatur | 20,1 °C |
| Kompressorens strømforbrug | 0,99 kW |
| Køle EER | 7,85 |
Kapacitet (kondensationsveksler)Projekteringsdata er beregnet på baggrund af en kondensationsveksler. Max Pa kapacitet af standardaggregat, Pt ext som funktion af qv under hensyntagen til SFP-værdierne. SFP-værdier iht. EN 13053 er for standardaggregat med ISO ePM10 >60% (M5) og ISO ePM1 50% (F7) filtre og uden varmeflade. * Lufthastighed over fordamperfladen er målt ved meter pr. sekund. OBS! SFP-værdierne er målt og angivet som en samlet værdi for begge ventilatorer. |
![]() |
Kapacitet (sorptionsveksler)Projekteringsdata er beregnetpå baggrund af en sorptionsveksler. Max Pa kapacitet af standardaggregat, Pt ext som funktion af qv under hensyntagen til SFP-værdierne. SFP-værdier iht. EN 13141-7 er for standardaggregat med ISO ePM10 >60% (M5) og ISO ePM1 50% (F7) filtre og uden varmeflade. * Lufthastighed over fordamperfladen er målt ved meter pr. sekund. OBS! SFP-værdierne er målt og angivet som en samlet værdi for begge ventilatorer. |
![]() |
TemperaturvirkningsgradTemperturvirkningsgrad for roterende veksler i henhold til EN308 (tør). |
![]() |
LyddataLyddata er for qv = 1200 m3/h og Pt ext = 250 Pa i henhold til EN 9614-2 for overflade og EN 5136 for kanaler. Lydeffektniveauet LWA falder med faldende luftmængde og faldende modtryk. Lydtryksniveauet LpA i en given afstand vil afhænge af de akustiske forhold pa installationsstedet. |
![]() |
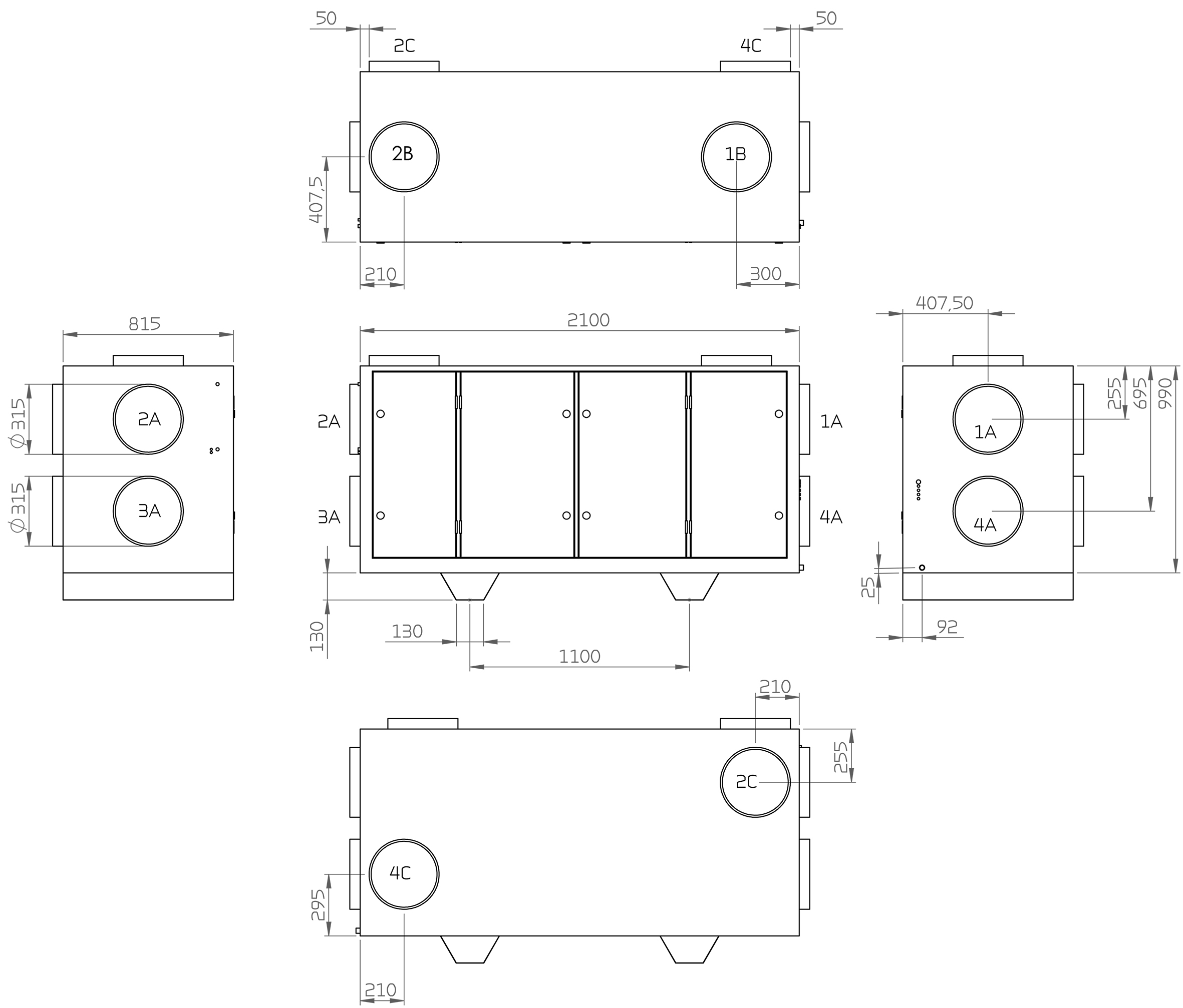
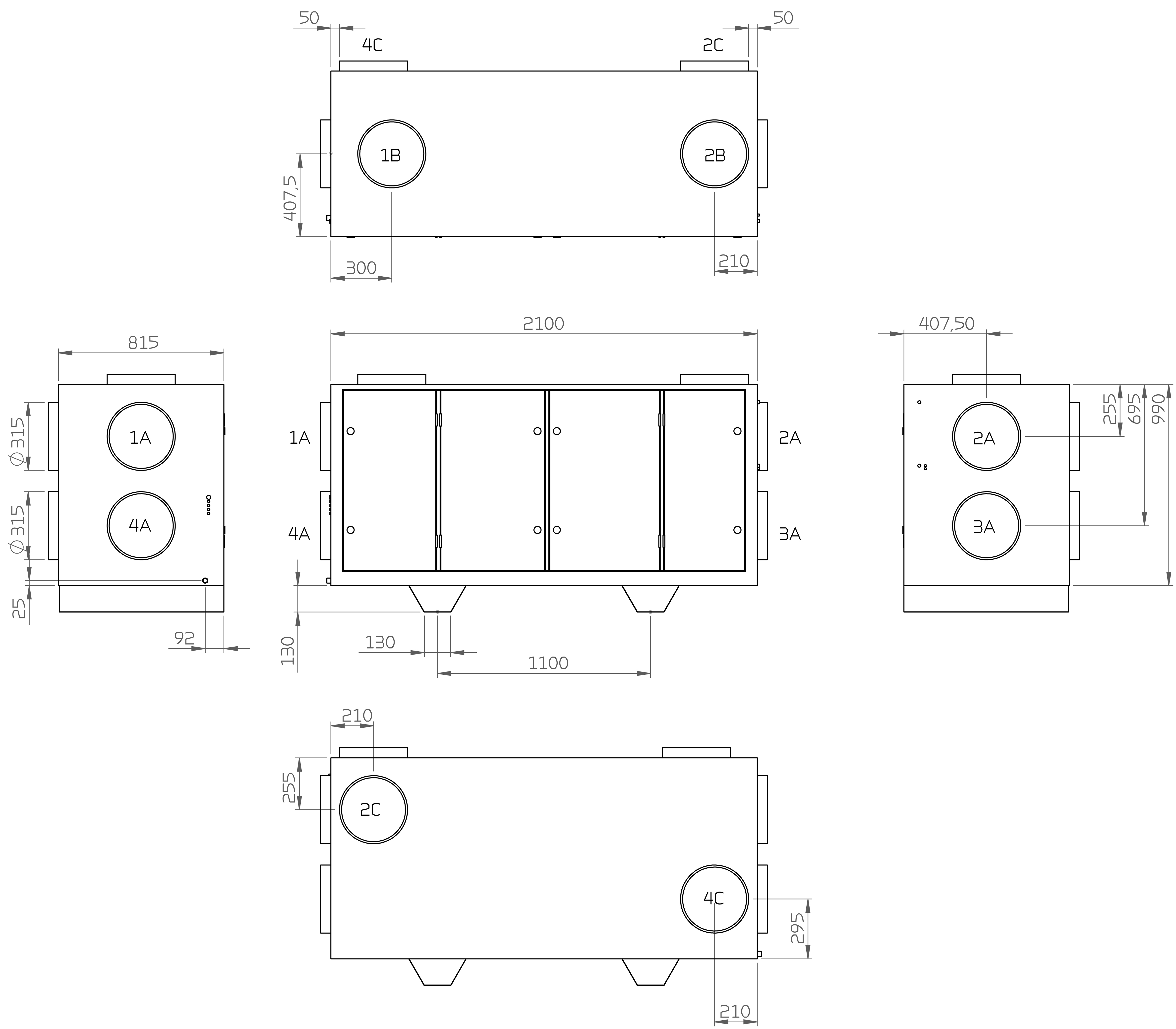
Målskitse for VPR 120 (venstre):
Alle mål er vist i mm. 1. Udeluft A. Gavl placering Målskitse for VPR 120 (højre):
Alle mål er vist i mm.
A. Gavl placering |
CTS602i styringen er en avanceret styring til erhvervsanlæg med mange indstillingsmuligheder. Styringen leveres fra fabrikken med en grundindstilling, der kan tilpasses de driftsmæssige ønsker og krav, for at opnå en optimal drift og udnyttelse af aggregatet. HMI Touch panelet giver et godt overblik over aggregatets aktuelle drift og har en menu-struktur, der er let at finde rundt i for både bruger og installatør. Ekstern kommunikation
Yderligere informationer om alle funktionerne findes i aggregatets Software- og Montagevejledning.
|






