VR 560
VR 560 er et ventilationsaggregat udviklet til central ventilation af bygninger. Aggregatet er udstyret med en rotorveksler, der sikrer stabil passiv varmegenvinding med høj virkningsgrad og bidrager til et behageligt indeklima året rundt. Serien giver også mulighed for naturlig køling (free cooling), så både komfort og energieffektivitet tænkes ind i den daglige drift.
VR 560 er velegnet til installation i skoler, kontorer, mødelokaler og andre erhvervslokaler, hvor der stilles krav til komfort, energieffektivitet og driftssikkerhed.
VR-seriens konstruktion med selvbærende ramme og 50 mm isolering giver en robust og kompakt enhed, der er nem at placere i tekniske rum med begrænset plads. Fleksibel studsplacering og universelle tilslutningsmuligheder gør det enkelt at tilpasse installationen til bygningen.
VR 560 er konstrueret med fokus på enkel installation og nem adgang til service.
Luftmængde (se projekteringsdata for SEL/SFP værdi)
Min : 0 m3/hMax : 6500 m3/h
|
| Luftmængde | 5600 m3/h |
| Udetemperatur | -7 °C / 72% RH |
| Udsugningstemperatur | 20 °C / 38% RH |
| Roterende varmeveksler | 45,23 kW |
KapacitetProjekteringsdata er beregnet på baggrund af en kondensationsveksler. Max Pa kapacitet af standardaggregat, Pt ext som funktion af qv under hensyntagen til SFP-værdierne. SFP-værdier iht. EN 13053 er for standardaggregat med ISO ePM10 >60% (M5) og ISO ePM1 50% (F7) filtre og uden varmeflade. * Lufthastighed over fordamperfladen er målt ved meter pr. sekund. OBS! SFP-værdierne er målt og angivet som en samlet værdi for begge ventilatorer. |
![]() |
TemperaturvirkningsgradTemperturvirkningsgrad for roterende veksler i henhold til EN308 (tør). |
![]() |
LyddataLyddata er for qv = 5600 m3/h og Pt ext = 200 Pa i henhold til EN 9614-2 for overflade og EN 5136 for kanaler. |
![]() |
|
|
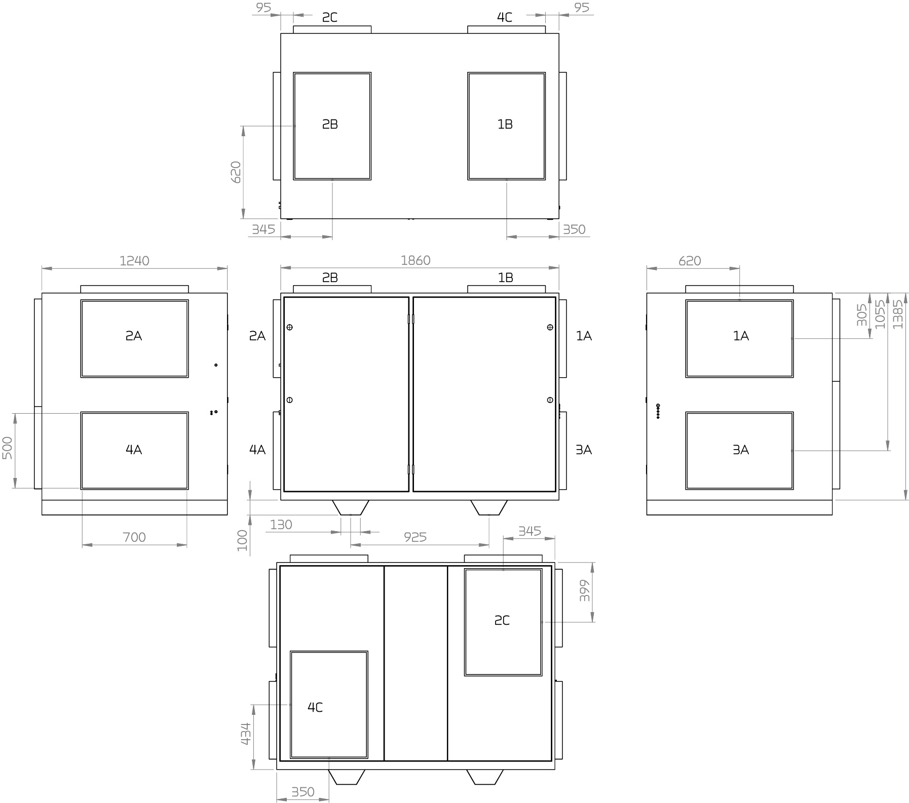
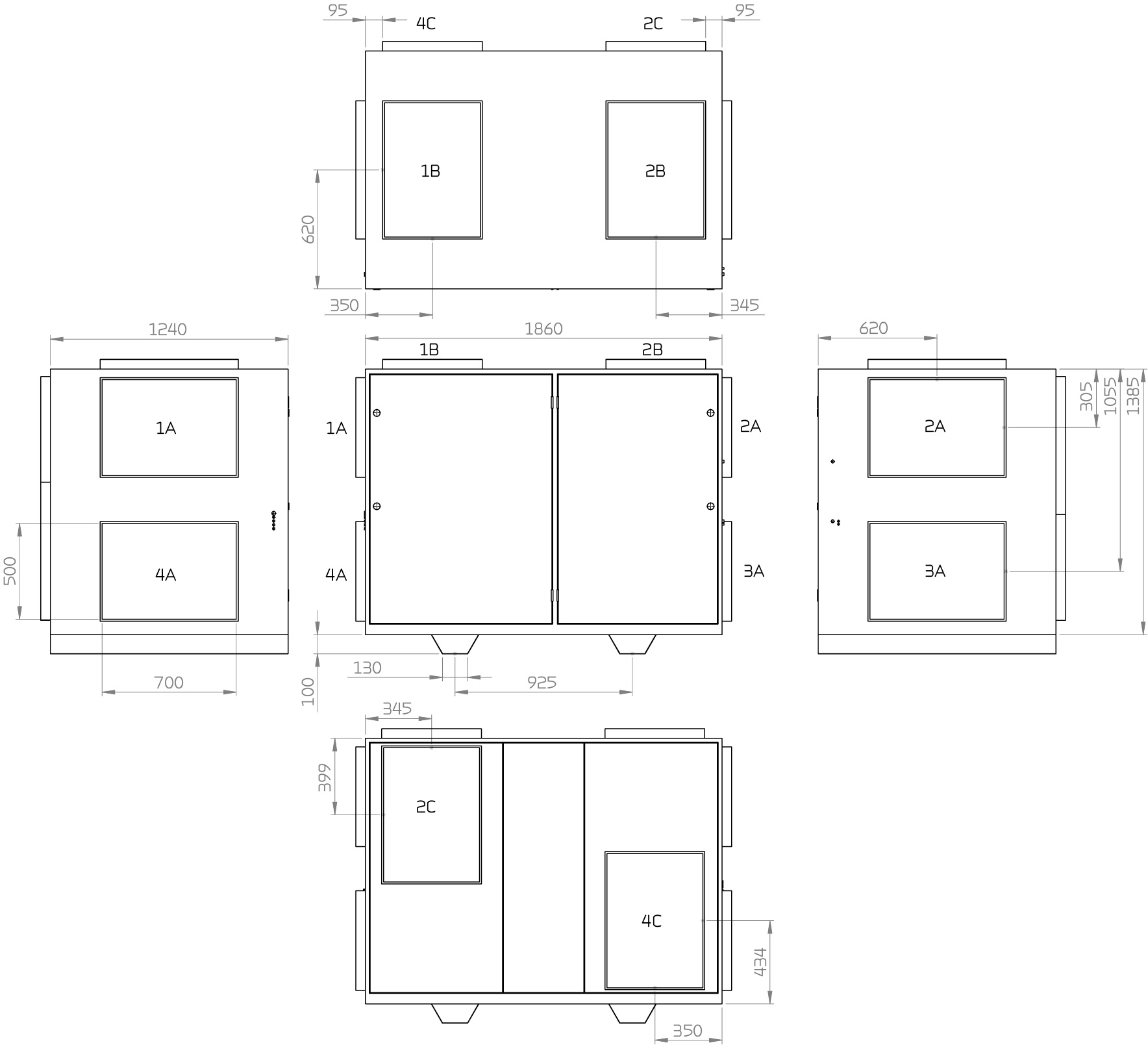
Målskitse for VR 560 (venstre):
Alle mål er vist i mm. 1. Udeluft A. Gavl placering Målskitse for VPR 560 (højre):
Alle mål er vist i mm. 1. Udeluft A. Gavl placering |
CTS602i er en avanceret styring til erhvervsanlæg med omfattende indstillingsmuligheder. Styringen leveres fra fabrikken med en grundopsætning, som nemt kan tilpasses de konkrete driftsmæssige ønsker og krav. Det sikrer en stabil og effektiv drift samt optimal udnyttelse af aggregatet. HMI Touch-panelet giver et klart overblik over aggregatets aktuelle drift og er opbygget med en intuitiv menustruktur, der gør det let at navigere – både for brugere og installatører. Ekstern kommunikation
Yderligere informationer om alle funktionerne findes i aggregatets Software- og Montagevejledning.
|
.jpg)




