Comfort 350 Top
Comfort 350 Top er et energieffektivt ventilationsaggregat med varmegenvinding for boliger og mindre erhvervsbygninger med et ventilationsbehov på op til 372 m3/h.
Anlægget er med toptilslutning og har et meget lavt lydniveau, og kan dermed installeres inde i boligen. Den hvide overflade gør, at det naturligt falder ind med andre hvidevarer i bryggerset eller teknikskabet. Comfort 350 Top er et ventilationsanlæg med kompakte indbygningsmål, der betyder, at det kan indbygges i et 60 cm bredt skab.
Comfort 350 Top er konstrueret, så det opnår et lavt strømforbrug og høj varmegenvinding. Denne kombination medfører at det opnår energimærke A.
Comfort 350 Top fås også som en Polar-version, der er udstyret med en selvregulerende forvarmeflade. Forvarmefladen beskytter aggregatet ved kolde udetemperaturer ved at opvarme indblæsningsluften og forhindre frostdannelse i varmeveksleren.
Luftmængde (se projekteringsdata for SEL/SFP værdi)
Min : 0 m3/hMax : 372 m3/h
Nilan App - Styring af hjemmets ventilation og varmepumpe direkte fra mobiltelefonen
|
Ved køb af en Nilan gateway kan brugeren få adgang til aggregatet via Nilan App'en. |
![]() |
|
KapacitetKapacitet af standardaggregat som funktion af qv og Pt ext. Testet i henhold til EN 13141-7 med standardfiltre ISO 16890 Coarse 75% (G4) og uden eftervarmeflade. SEL-værdier indeholder aggregatets samlede elforbrug ekskl. styring. Konverteringsfaktor: J/m3 : 3600 = W/m3/h OBS! SEL-værdierne er målt og angivet som en samlet værdi for begge ventilatorer. |
![]() |
TemperaturvirkningsgradTemperaturvirkningsgrad for standardaggregat med modstrømsveksler. Testet i henhold til EN 13141-7, tør virkningsgrad. |
![]() |
LyddataLyddata er for qv = 200 m3/h og Pt ext = 100 Pa i henhold til EN 3744 for overflade og EN 5136 for kanaler. Lydeffektniveauet LWA falder med faldende luftmængde og faldende modtryk. Lydtryksniveauet LpA i 1 m fra aggregat. |
![]() |
LyddataLyddata er for qv = 350 m3/h og Pt ext = 100 Pa i henhold til EN 3744 for overflade og EN 5136 for kanaler. Lydeffektniveauet LWA falder med faldende luftmængde og faldende modtryk. Lydtryksniveauet LpA i 1 m fra aggregat. |
![]() |
Du kan downloade AutoCad eller Revit tegninger med BIM-data på en række af Nilan ventilations- og varmepumpeløsninger - listen udvides løbende. Se BIM-data på Nilan anlæg her
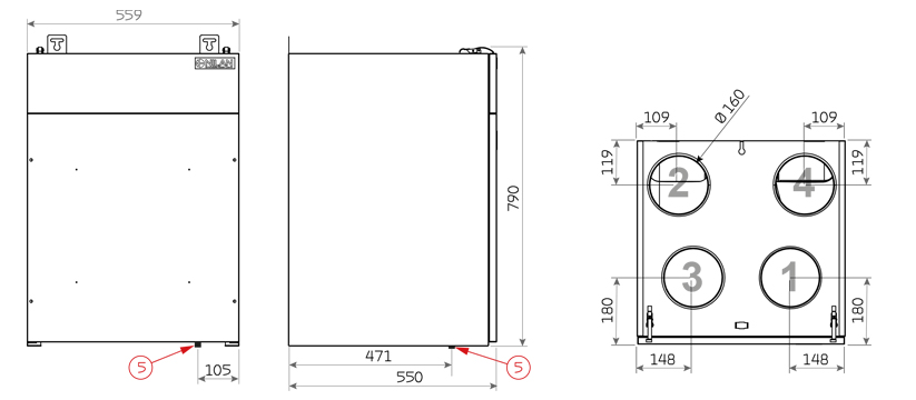
Målskitse af Comfort 350 Top højre model (tilluft højre side)
Målskitse af Comfort 350 Top venstre model (tilluft venstre side)
1: Udeluft
Målskitse af Comfort 350 Top Polar højre model (tilluft højre side)
Målskitse af Comfort 350 Top Polar venstre model (tilluft venstre side)
1: Udeluft |
CTS602 styringen er en avanceret styring med mange indstillingsmuligheder. Styringen leveres fra fabrikken med en grundindstilling, der kan tilpasses de driftsmæssige ønsker og krav for at opnå en optimal drift og udnyttelse af aggregatet. HMI Touch panelet giver et godt overblik over aggregatets aktuelle drift og har en menustruktur, der er let at finde rundt i for både bruger og installatør. Det er muligt at vælge mellem 2 forskellige forsidebilleder til hovedskærmen. Ekstern kommunikation CTS602 styringen har en åben Modbus RS485 protokol, der kan bruges til at kommunikere med via eksterne CTS systemer. Modbus forbindelsen bruges f.eks. til Schneiders IHC eller KNX system.
Yderligere informationer om alle funktionerne findes i aggregatets Software- og Montagevejledning.
|
OBS! Ved opstilling af aggregatet bør der altid tages hensyn til fremtidig service og vedligehold. Der anbefales en minimum friplads foran aggregatet på 60 cm. Det skal være let at udskifte filtre og f.eks. skal det være muligt at kunne tage veksleren ud, udskifte ventilator eller andre komponenter. Derfor anbefales det også at forbinde aggregatet med kanalsystemet via fleksible forbindelser. OBS! Der er vigtigt, at aggregatet opstilles i vater for at opnå et ordentligt afløb fra kondensvandsbakken. Aggregatet er øverst på bagsiden udstyret med to montagebeslag med huller for vægmontage.
|










