Comfort 250L/Comfort 250R
Comfort 250L/Comfort 250R er et energieffektivt ventilationsaggregat med varmegenvinding ideelt til renoveringsprojekter og nybyggeri med et ventilationsbehov på op til 250 m3/h. Comfort 250L/Comfort 250R fås kun til projektsalg.
Comfort 250 er udstyret med en unik boostfunktion beregnet til emhættedrift. Ved aktivering af brugervalg, får man mulighed for ekstra 50 m3/h til at sikre et ordentligt sug i emhætten. Comfort 250 kan via boostfunktionen give 300 m3/h ved 200 Pa eksternt tryktab.
Aggregatet placeres oftest i et uudnyttet loftsrum og tager derfor ikke skabsplads i bryggerset. Placeringen i loftsrummet betyder også, at der er let at afskærme evt. støj fra aggregatet ind i boligen. Ved installation er det desuden muligt at demontere hele fronten, så Comfort 250 kun måler 532 mm i dybden, hvilket er en stor fordel, når anlægget skal placeres på loftet. Comfort 250L er venstre version og Comfort 250R er højre version.
Comfort 250 er konstrueret, så det opnår et lavt strømforbrug og høj varmegenvinding. Denne kombination medfører at det opnår energimærke A.
Comfort 250 fås også som en Polar-version, der er udstyret med en 600 W selvregulerende forvarmeflade. Forvarmefladen beskytter aggregatet ved kolde udetemperaturer ved at opvarme indblæsningsluften og forhindre frostdannelse i varmeveksleren.
Luftmængde (se projekteringsdata for SEL/SFP værdi)
Min : 0 m3/hMax : 250 m3/h
Nilan App - Styring af hjemmets ventilation og varmepumpe direkte fra mobiltelefonen
|
Ved køb af en Nilan gateway kan brugeren få adgang til aggregatet via Nilan App'en. |
![]() |
|
KapacitetKapacitet af standardaggregat som funktion af qv og Pt ext. Testet i henhold til EN 13141-7 med standardfiltre ISO 16890 Coarse 75% (G4) og uden eftervarmeflade. SEL-værdier indeholder aggregatets samlede elforbrug ekskl. styring. Konverteringsfaktor: J/m3 : 3600 = W/m3/h OBS! SEL-værdierne er målt og angivet som en samlet værdi for begge ventilatorer. |
![]() |
Kapacitet (boost funktion)CTS400 har et trin 5 og 6 som begge er tilknyttet brugervalg 1 og 2. På den måde kan man booste luftvolumen i aggregatet, når der. f.eks. er en emhætte tilsluttet.
|
![]() |
TemperaturvirkningsgradTemperaturvirkningsgrad for standardaggregat med modstrømsveksler. Testet i henhold til EN 13141-7, tør virkningsgrad. |
![]() |
LyddataLyddata er for qv = 126 m3/h og Pt ext = 100 Pa i henhold til EN 3744 for overflade og EN 5136 for kanaler. Lydeffektniveauet LWA falder med faldende luftmængde og faldende modtryk. Lydtryksniveauet LpA i 1 m fra aggregat. |
![]() |
LyddataLyddata er for qv = 250 m3/h og Pt ext = 100 Pa i henhold til EN 3744 for overflade og EN 5136 for kanaler. Lydeffektniveauet LWA falder med faldende luftmængde og faldende modtryk. Lydtryksniveauet LpA i 1 m fra aggregat. |
![]() |
Du kan downloade AutoCad eller Revit tegninger med BIM-data på en række af Nilan ventilations- og varmepumpeløsninger - listen udvides løbende. Se BIM-data på Nilan anlæg her
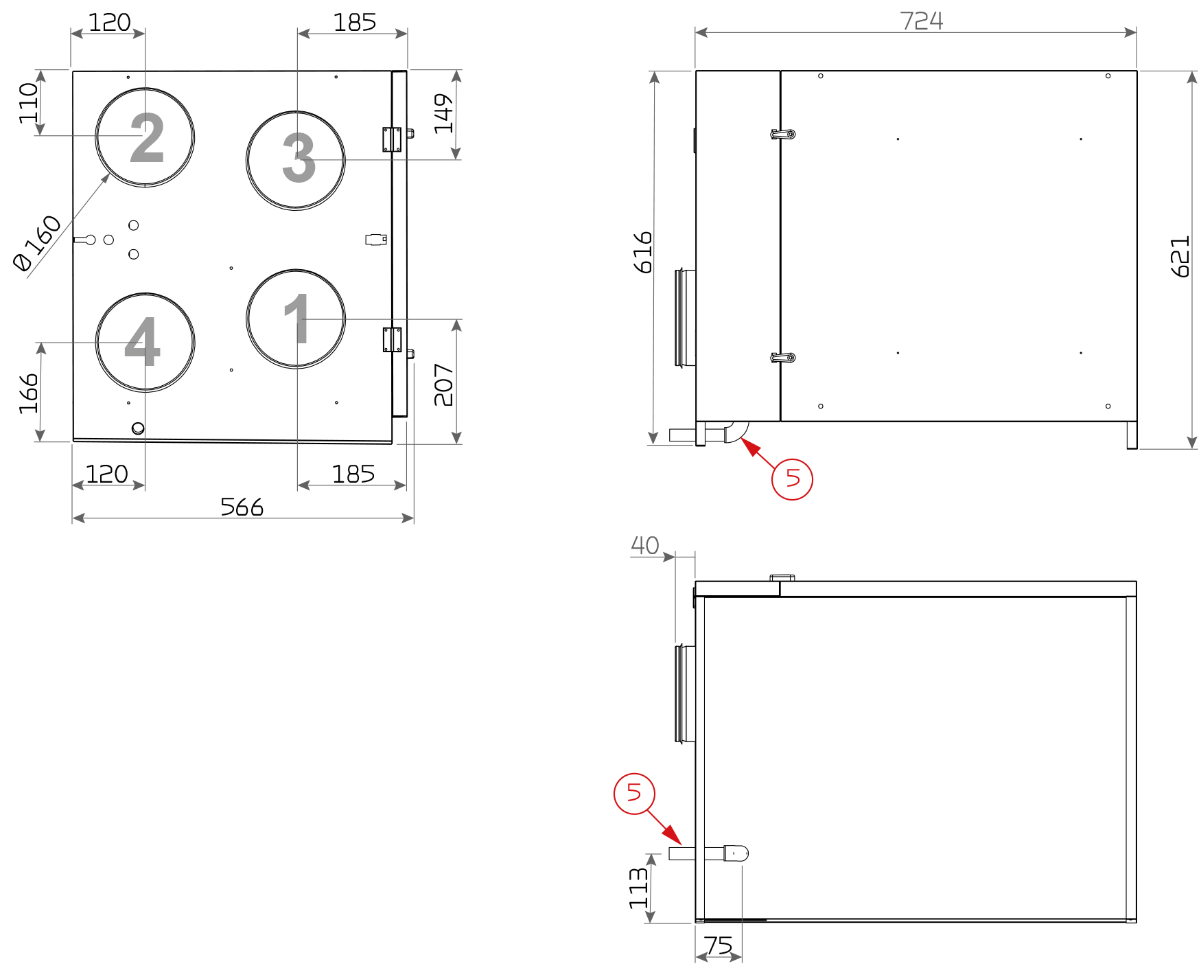
Målskitse af Comfort 250L venstre version (tilluft venstre side)
1: Udeluft
Målskitse af Comfort 250R højre version (tilluft højre side)
1: Udeluft
Målskitse af Comfort 250L Polar venstre version (tilluft venstre side)
1: Udeluft
Målskitse af Comfort 250R Polar højre version (tilluft højre side)
1: Udeluft |
CTS400 er et enkelt og intuitivt betjeningspanel med en kompleks styring, der indeholder mange nyttige funktioner. Med betjeningspanelet kan man indstille ventilatortrin, tænde og slukke for aggregatet samt se evt. alarmer. Til brug i udlejningsejendomme, hoteller osv. er det muligt at låse panelet så lejeren ikke kan slukke for aggregatet og/eller stille på ventilationstrin. Styringens mange funktioner giver bl.a. mulighed for tilkobling af eftervarmeflader og CO2- eller VOC-sensor. Som standard har styringen bl.a. brugervalgsprogrammer, intelligent fugtstyring og integreret brandautomatik. CTS400 har en åben Modbus kommunikation, der giver mulighed for tilslutning til eksterne CTS-systemer. Modbus forbindelsen kan også tilsluttes en Nilan gateway cloudløsning, der giver mulighed for at styre og overvåge aggregatet via en App-løsning på en smartphone.
|
OBS! Ved opstilling af aggregatet bør der altid tages hensyn til fremtidig service og vedligehold. Der anbefales en minimum friplads foran aggregatet på 60 cm. Det skal være let at udskifte filtre og f.eks. skal det være muligt at kunne tage veksleren ud, udskifte ventilator eller andre komponenter. Derfor anbefales det også at forbinde aggregatet med kanalsystemet via fleksible forbindelser. OBS! Designet så anlægget kipper (er ikke vandret), så kondensvand nemmere løber af. Det er derfor vigtigt, at underlaget hvorpå anlægget skal stå, er i vater, så anlægget får den rette hældning. |











