Compact P XL
Compact P XL er et multiaggregat med flere installationer samlet i en kompakt installation, beregnet til lidt større huse med et ventilationsbehov op til 430 m3/h. Compact P XL ventilerer boligen samt producerer varmt brugsvand. Derudover kan anlægget sammenbygges med en jord- eller udeluftvarmepumpe, der fuldt integrerbare i Compact P XL.
En stor fordel ved at samle disse installationer i én installation, er ud over en stor pladsbesparelse i teknikrummet, at de styringsmæssigt arbejder sammen og dermed giver mulighed for optimeret energiforbrug og dermed en samlet energibesparelse.
Luftmængde (se projekteringsdata for SEL/SFP værdi)
Min : 50 m3/hMax : 430 m3/h
Husets "hjerte og lunger"
Compact P XL er et utraditionelt ventilationsaggregat, der i modsætning til andre ventilationsaggregater genvinder varmen i fraluften 100%. Via modstrømsveksleren genvindes op til 95% af energien i fraluften til opvarmning af udeluften. Den resterende energi udnyttes af den indbyggede varmepumpe til at producere det varme brugsvand.
Compact P XL
|
KapacitetKapacitet af standardaggregat som funktion af qv og Pt ext. Testet i henhold til EN13141-7 med standardfiltre ISO 16890 Coarse 75% (G4) og uden eftervarmeflade. SEL-værdier indeholder aggregatets samlede elforbrug ekskl. styring. Konverteringsfaktor: J/m3 : 3600 = W/m3/h. OBS! SEL-værdierne er målt og angivet som en samlet værdi for begge ventilatorer. |
![]() |
TemperaturvirkningsgradTemperaturvirkningsgrad for standardaggregat med modstrømsveksler. Testet i henhold til EN13141-7, tør virkningsgrad. NB! Temperaturvirkningsgraden er for modstrømsveksleren alene (uden varmepumpedrift) |
![]() |
COP luft/luftVarmeeffektfaktor COP indblæsningsluft som funktion af udetemperatur [ºC] og volumenstrøm qv [m3/h] i henhold til EN14511 ved en fralufttemperatur på 21 ºC. NB! COP i henhold til EN14511 er udregnet for varmepumpe og modstrømsveksler samlet. |
![]() |
Varmeeffekt indblæsningVarmeeffekt Qc [W] som funktion af volumenstrøm qv [m3/h] og udelufttemperatur [ºC] fraluft = 21 ºC, i henhold til EN14511. Varmeeffekt er det bidrag til rumopvarmningen som friskluften tilføres gennem Compact P XL til indblæsningsluften. Ventilationstabet er den varmeeffekt, der tabes uden varmegenvinding ved den givne volumenstrømsluft. Ventilationstab: - - - - - - - - - - - - |
![]() |
TappevandTappevolumen i liter Vmax [L] fra Compact P beholder som funktion af tappetemperatur [ºC] og beholder temperatur ved 40, 50 og 60 ºC. |
![]() |
LyddataLyddata er for qv = 275 m3/h og Pt ext = 100 Pa iht. EN 9614-2 for overflade og EN 5136 for kanaler. Lydeffektniveauet LWA falder med faldende luftmængde og faldende modtryk. Lydtryksniveauet LpA i 1 m fra aggregatet.
|
![]() |
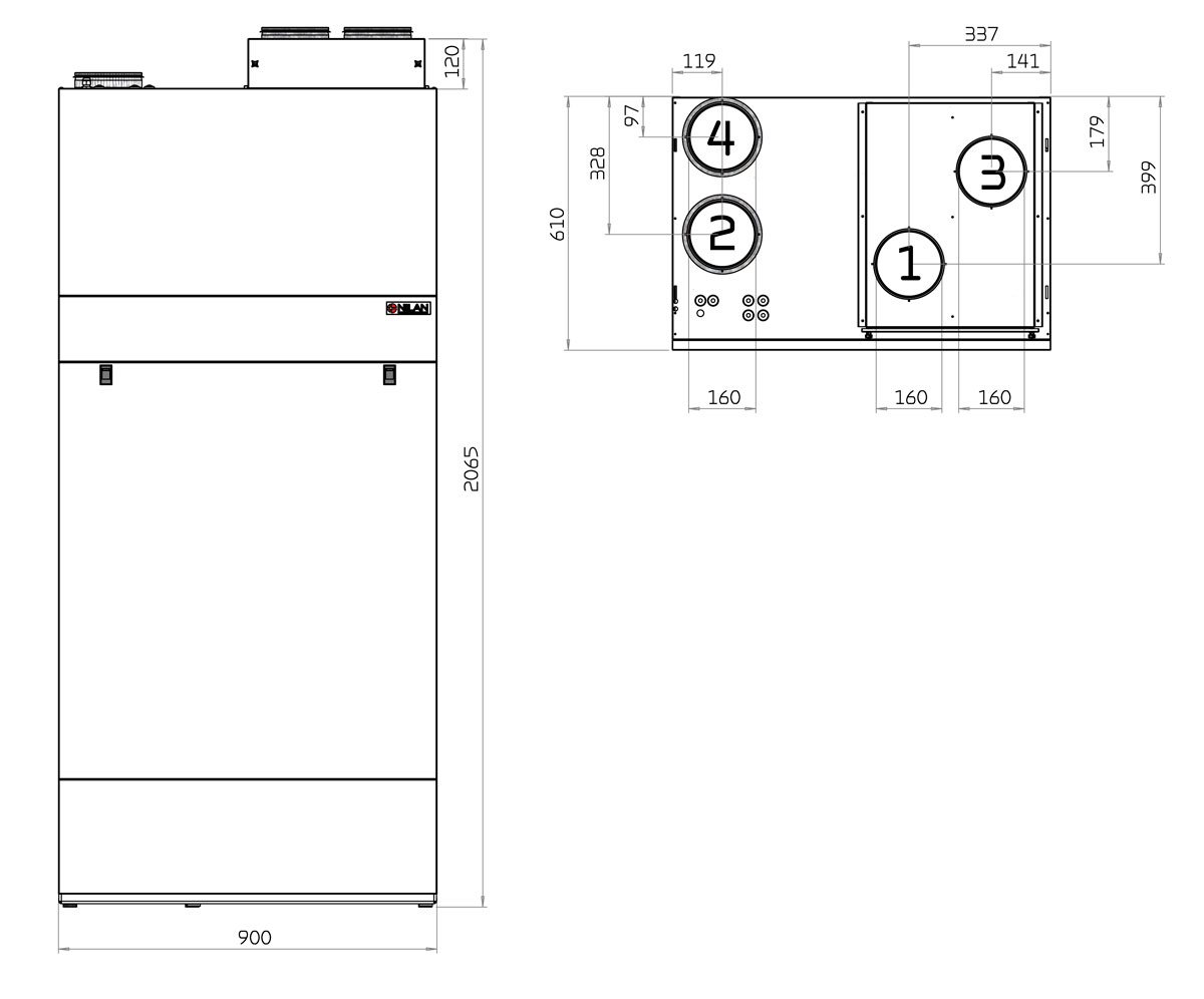
1: Udeluft |
CTS602 styringen er en avanceret styring med mange indstillingsmuligheder. Styringen leveres fra fabrikken med en grundindstilling der kan tilpasses de driftsmæssige ønsker og krav, for at opnå en optimal drift og udnyttelse af aggregatet. HMI Touch panelet giver et godt overblik over aggregatets aktuelle drift, og har en menu-struktur, der er let at finde rundt i for både bruger og installatør. Ekstern kommunikation CTS602 styringen har en åben Modbus RS485 protokol, der kan bruges til at kommunikere med via eksterne CTS systemer. Modbus forbindelsen bruges f.eks. til Schneiders IHC eller KNX system.
Yderligere informationer om alle funktionerne findes i aggregatets Software- og Montagevejledning.
|
OBS! Ved opstilling af aggregatet bør der altid tages hensyn til fremtidig service og vedligehold. Der anbefales en minimum friplads foran aggregatet på 60 cm. Det skal være let at udskifte filtre og f.eks. skal det være muligt at kunne tage veksleren ud, udskifte ventilator eller andre komponenter. Derfor anbefales det også at forbinde aggregatet med kanalsystemet via fleksible forbindelser. OBS! Der er vigtigt, at aggregatet opstilles i vater for at opnå et ordentligt afløb fra kondensvandsbakken.
|
Smart Grid
Compact P XL er certificeret efter det tyske Smart Grid, der giver elselskabet mulighed for at overstyre driften, så det bliver billigst muligt for brugeren. Smart Grid løsningen kan også bruges i forbindelse med solceller, hvis man ønsker at optimere driften til når der produceres mest strøm.
|
















