VPM 480 M2
VPM 480 M2 er et ventilationsaggregat med varmegenvinding via en reversibel varmepumpe, der både kan køle og opvarme tilluften. En indbygget heatpipe bidrager til varmegenvindingen og forbedrer aggregatets effektivitet – hvilket medvirker til en god COP.
VPM 480 M2 anvendes til ventilation af bygninger, hvor der stilles krav til høj luftkvalitet – eksempelvis lokaler med forurenet eller fugtig luft, som ventileres separat via det centrale ventilationssystem. Det kan være restaurantionskøkkener, toiletter og omklædningsrum. Fraluften og tilluften er fuldstændig adskilte, hvilket forhindrer overførsel af partikler.
Takket være den integrerede varmepumpe er VPM 480 M2 en kompakt løsning, som minimerer behovet for plads i bygningen. Samtidig elimineres behovet for et eksternt køleaggregat, der ellers skulle placeres på taget eller jorden.
Leveres med Nilan Gateway til App løsning.
Luftmængde (se projekteringsdata for SEL/SFP værdi)
Min : 1200 m3/hMax : 4800 m3/h
|
KapacitetMax Pa kapacitet af standardaggregat, Pt ext som funktion af qv under hensyntagen til SFP-værdierne. SFP-værdier iht. EN 13053 er for standardaggregat med ISO ePM10 >60% (M5) og ISO ePM1 50% (F7) filtre og uden varmeflade. * Lufthastighed over fordamperfladen er målt ved meter pr. sekund. OBS! SFP-værdierne er målt og angivet som en samlet værdi for begge ventilatorer. |
![]() |
Varmeeffekt COP (luft/luft)Varmeeffektfaktor COP [-] tilluft som funktion af udetemperatur [ºC] og volumenstrøm qv [m3/h] I henhold til EN 14511, fraluft = 21 ºC |
![]() |
VarmeeffektVarmeeffekten er baseret på en udsugningstemperatur på 20 °C, og nomimel luftmængde på 4800 m3/h.
|
![]() |
KøleeffektKøleeffekten er baseret på en udsugningstemperatur på 25 °C/50% RH, og nomimel luftmængde på 4800 m3/h.
|
![]() |
LyddataLyddata er for qv = 4800 m3/h og Pt ext = 250 Pa i henhold til EN 9614-2 for overflade og EN 5136 for kanaler. Lydeffektniveauet LWA falder med faldende luftmængde og faldende modtryk. Lydtryksniveauet LpA i en given afstand vil afhænge af de akustiske forhold pa installationsstedet. |
![]() |
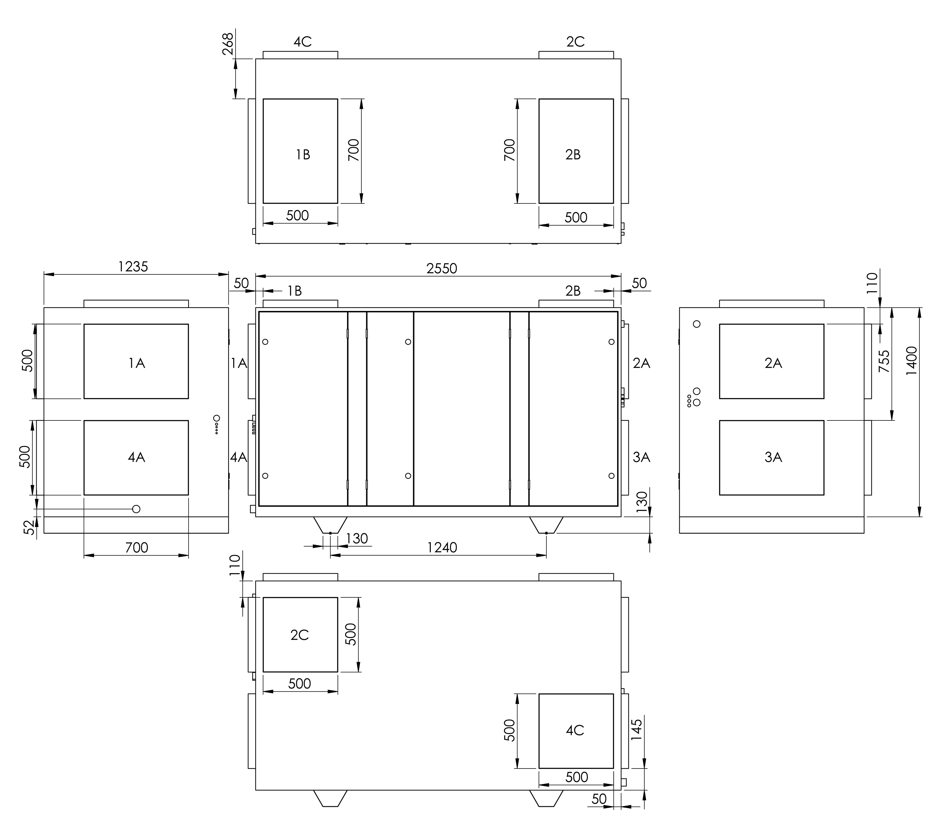
Målskitse for VPM 480 M2 (venstre):
Alle mål er vist i mm. 1. Udeluft A. Gavl placering
Målskitse for VPM 480 M2 (højre):
Alle mål er vist i mm. 1. Udeluft A. Gavl placering
|
CTS602i styringen er en avanceret styring til erhvervsanlæg med mange indstillingsmuligheder. Styringen leveres fra fabrikken med en grundindstilling, der kan tilpasses de driftsmæssige ønsker og krav, for at opnå en optimal drift og udnyttelse af aggregatet. HMI Touch panelet giver et godt overblik over aggregatets aktuelle drift, og har en menu-struktur, der er let at finde rundt i for både bruger og installatør. Det er muligt at vælge mellem 2 forskellige forsidebilleder til hovedskærmen. Ekstern kommunikation
Yderligere informationer om alle funktionerne findes i aggregatets Software- og Montagevejledning.
|
OBS! Der anbefales god friplads foran aggregatet. Ved opstilling af aggregatet bør der altid tages hensyn til fremtidig service og vedligehold. Det skal være let at udskifte filtre, og det skal være muligt at kunne udskifte ventilatorer eller andre komponenter. Der skal være plads til nemt at kunne rengøre anlægget. Ved rengøring af anlæg kan der løbe vand ud af rengørings- og kondensvandsafløb. Der skal derfor være plads til montering af vandlåse ved kondensvandsafløb samt evt. afspærringshaner ved rengøringsafløb. OBS! Det er vigtigt, at aggregatet opstilles i vater for at opnå et ordentligt afløb fra kondensvandbakken.
OBS! Aggregatet er støj- og vibrationssvagt, men der bør alligevel tages højde for eventuelle vibrationer, der kan forplante sig fra aggregatet ud i de enkelte bygningsdele. For at skabe adskillelse mellem aggregat og underlag anbefales det derfor at montere vibrationsdæmpere under aggregatet. Til øvrige bygningsdele og fast inventar bør der være ca. 10 mm afstand.
|
Motor og motorstyring
|









